Courtesy of 2% Realty.
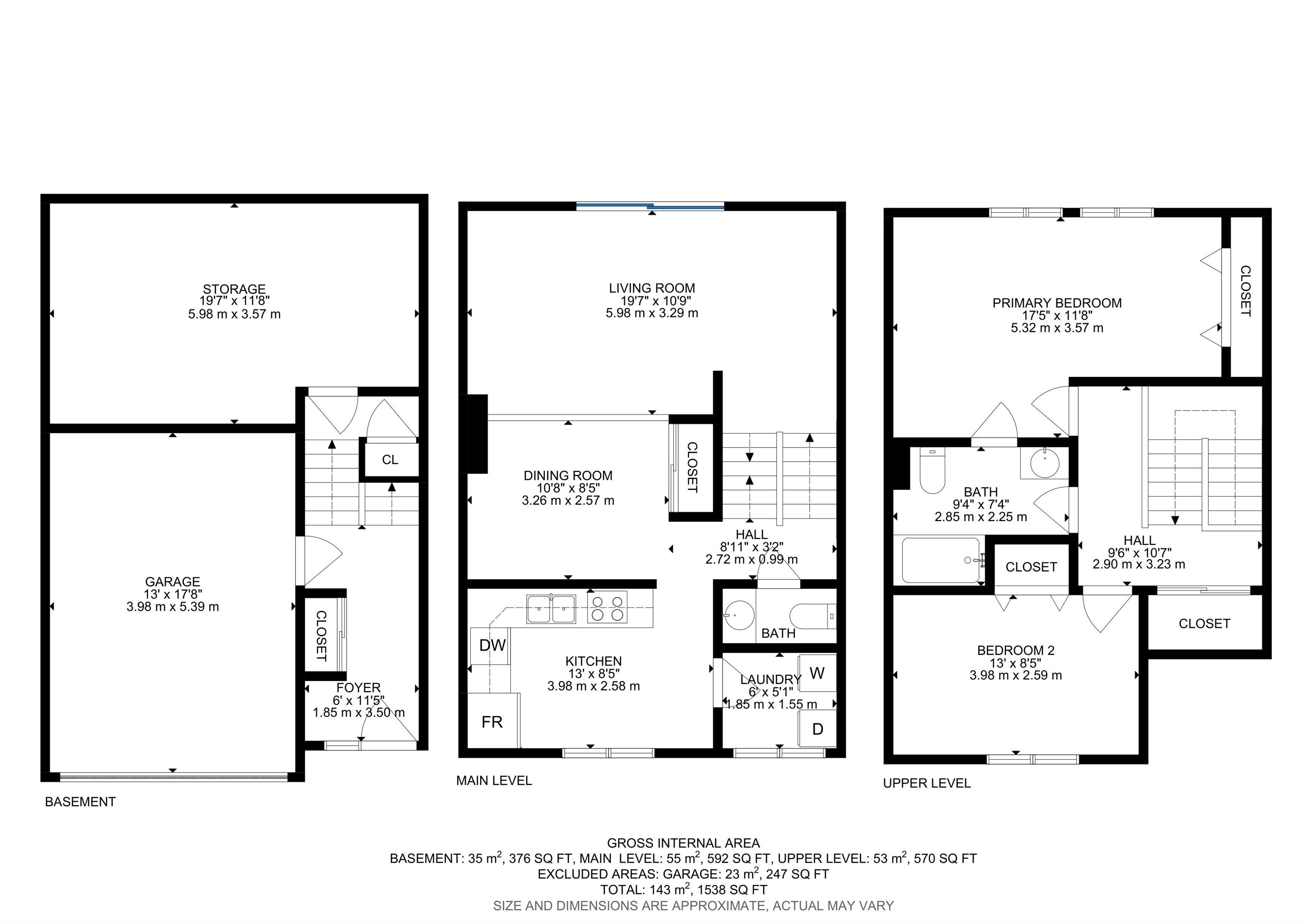
Welcome to this well-maintained 1,162 sq. ft. home in the desirable community of Casselman.This inviting property offers 2 bedrooms and 1.5 bathrooms, perfect for first-time buyers, small families, or anyone looking to downsize. The functional kitchen features plenty of cabinet space and flows seamlessly into the dining and living areas, ideal for both everyday living and entertaining.Upstairs, you?ll find 2 comfortable bedrooms and a beautifully designed full bathroom.The main floor boasts modern vinyl plank flooring that adds warmth and style throughout the living area.Step outside to enjoy the fully fenced backyard, perfect for outdoor gatherings, gardening, or relaxing in privacy. The single attached garage provides convenient parking and additional storage space. Located close to playgrounds, schools, bus stops, and shopping, this home offers a wonderful blend of comfort, convenience, and value.
Listing Information
- Prop. Type:
- Townhouse
- Property Style:
- 4 Level Split
- Status:
- Active
- City:
- Edmonton
- MLS® Number:
- E4463036
- Bedrooms:
- 2
- Neighbourhood:
- Casselman
- Area:
- Edmonton
- Province:
- Alberta
- Listing Price:
- $234,900
General Information
- Year Built:
- 1977
- Total Square Feet:
- 1163ft2
Additional Information
- Basement Dev:
- Full, Partially Finished
- Parking:
- Single Garage Attached